港高鐵建羈留設施 中共要執法?

陳玨明 2017/03/09 18:30 點閱 17004 次
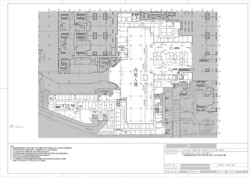
香港傳真社取得的高鐵西九龍總站「內地口岸區平面圖」顯示,樓層內已有仔細隔格分佈,部分房間還標明用途,當中包括羈押空間。(photo by傳真社)
香港傳真社取得的高鐵西九龍總站「內地口岸區平面圖」顯示,樓層內已有仔細隔格分佈,部分房間還標明用途,當中包括羈押空間。(photo by傳真社)

【台灣醒報特約記者陳玨明香港報導】香港跟大陸間的一國兩制承諾,正面臨考驗。耗資逾四千億新台幣興建的廣深港高鐵香港段,最大的技術難關「一地兩檢」部分,近日有突破性爆料,有香港傳媒取得高鐵西九龍總站設計圖則文件,發現站內的「內地口岸區」工程早於去年9月已動工,當中包括羈留設施,意味令中國執法人員將在香港範圍內有執法權,已違反《基本法》規定。資料曝光後,港府一直未有作正面交代。

香港傳真社(FactWire)取得一份名為「廣深港高鐵內地口岸區佈局方案」的設計文件,是去年7月經修訂的高鐵西九總站設計圖則,文件為簡體字,詳列「內地口岸區」布局設計,顯示中國大陸高度參與出入境設施的設計,報導又引述消息,指圖則曾呈給中國鐵路部門審批,而港方去年9月已按圖則展開「內地口岸區」工程,內牆間隔大致完成。

至於有香港傳媒早前公開另兩份高鐵總站圖則,顯示樓層內設有「羈留區」,新圖則中原有「羈留區」範圍改為「員工食堂」,但另設有3間「邊檢羈留室」,惟範圍有所縮減。

高鐵香港段工程除超支及延誤外,關鍵之一的「一地兩檢」安排,亦一直引來關注,由於如果沒有「一地兩檢」,意味列車將來過境到達大陸後,需要停車讓乘客清關,將令「高鐵」失去快及方便的賣點,令整個鐵路工程如同作廢。

然而,根據《基本法》第18條規定,「全國性法律除列於本法附件三者外,不在香港特別行政區實施。」故中國大陸人員如果跨境到香港,將要在香港境內依法作出入境安排,變成無法可執,故早在十年前港府提出有關工程後,一直被質疑涉及問題根本沒有解決方案。

另一關鍵是關於香港的範圍,在中港兩地法律上本有清晰界定,故把位於香港中心地帶的高鐵西九龍總站部分樓層,如劃作大陸管轄區,亦是沒有法律基礎。但就現有事時推估,港府似是先把工程完成,繼而再霸王硬上弓,令違憲越境的「一地兩檢」成為既定事實。

港府發言人不諱言,特區政府一直與中國大陸就「內地口岸區」的設計保持溝通。至於落實一地兩檢的方案,特區政府仍與內地相關部委研究和商討。另國務院港澳辦主任王光亞指出,本月中旬兩地會就高鐵一地兩檢商討,應該會有進展。香港律政司司長袁國強9日再回應,強調「一地兩檢」方案一定會符合《基本法》,也一定要符合「一國兩制」的精神。

捐款成為醒報天使

由於熱心人與支持者的捐款,醒報的深度報導與客觀評論都是免費閱讀的,希望你也能加入「醒報天使」的行列,小額支持。我們會寄給您抵稅收據!